Kita under Construction
Kita Mönchhof
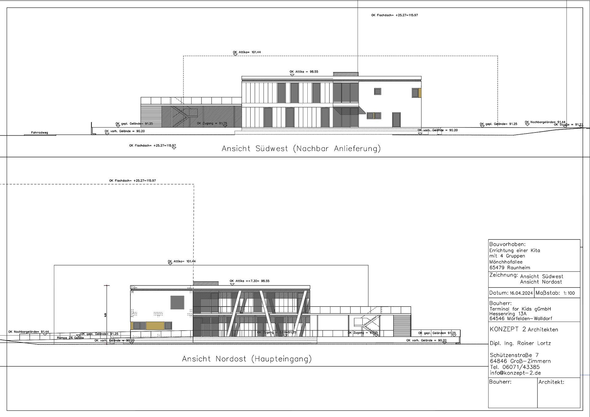
Mönchhofallee
65479 Raunheim
Willkommen in der neuen Kita der TfK in Mönchhof
Direkt am Fahrradweg zwischen Raunheim und Kelsterbach und mit Blick auf die Eddersheimer Schleuse entsteht ein ganz besonderer Ort für Kinder: Unsere neue Kindertagesstätte in der Mönchhofallee. Im Herzen des aufstrebenden Mönchhofareals wird die neue Kindertagesstätte für insgesamt 74 Kinder einen Betreuungsplatz bieten, je in zwei Krippen- und zwei Kindergartengruppen.
Die Eröffnung ist für den Sommer 2026 geplant.
Was unsere Kita besonders macht
Tiergestützte Pädagogik & Naturerleben
Kinder erleben Tiere als emotionale Begleiter und lernen Fürsorge und Verantwortung. Die naturnahe Lage lädt täglich dazu ein, die Welt mit allen Sinnen zu entdecken.
Gesunde Ernährung im hauseigenen Bistro
Unsere Küche bietet frisch zubereitete, kindgerechte Mahlzeiten – vollwertig, ausgewogen und auf Grundlage eines fundierten Ernährungskonzepts.
Bewegung, Spiel & Ausblick
Ob Toben in der eigenen Turnhalle, Spielen im großzügigen Außengelände oder Staunen auf der Galerie mit Blick auf die Schleuse – wir schaffen Räume für Körper, Geist und Fantasie.
Für alle – mit Platz für Partnerschaft
Fünf der 74 Betreuungsplätze sind für Kinder von Mitarbeitenden der
Fraport AG reserviert. Auch Sie als Unternehmen am Standort Mönchhof können von dem Firmenplatz-Modell profitieren – für eine familienfreundliche Arbeitswelt in direkter Nachbarschaft, hohe Mitarbeitermotivation und -zufriedenheit. Sprechen Sie uns an!
Ein Ort für Familien aus Raunheim und Kelsterbach
Die Kita liegt optimal erreichbar und verbindet städtische Nähe mit naturnaher Atmosphäre. Familien profitieren von kurzen Wegen, einer inspirierenden Umgebung und einem pädagogisch fundierten Konzept.
Unser Anspruch als Träger
Als etablierter freier und gemeinnütziger Träger mit rund 20 Jahren Erfahrung steht die Terminal for Kids gGmbH für verlässliche Qualität, starke Teams und ein wertschätzendes Miteinander. Mit der neuen Kita in Raunheim schaffen wir einen Ort, der Innovation, Naturverbundenheit und pädagogische Haltung vereint – für eine Kindheit voller Möglichkeiten.
Weitere Informationen / Kooperationsanfragen
Sollten Sie noch weitere Informationen zum Bauvorhaben benötigen oder Interesse an einer Kooperation beziehungsweise an Firmenbetreuungsplätzen haben, dann wenden Sie sich gerne an uns:
Haben Sie Interesse bei uns zu arbeiten?
Dann melden Sie Sich gerne bei unserem Team der Personalgewinnung:

